Klipperstraat

Prijs : € 791

Amsterdam

appartement


Klipperstraat Ga naar Huurwoningen-nl

voor € 791

Bekijk alle informatie en beschikbaarheid bij Huurwoningen-nl.

Belangrijk! Dit geldt uitsluitend voor een woningruil; je moet een huurwoning hebben om met deze huurwoning te kunnen ruilen.

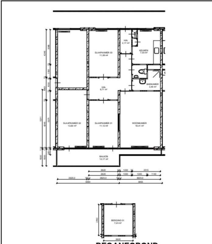
Ik bied een 4 kamerwoning aan 4 hoog met lift in noord De woning heeft een gerenoveerde keuken wc en badkamer. De muren zijn gestuukt en er ligt nieuwe laminaat Met een balkon van 10 meter binnentuin die gebruikt mag worden voor feestjes en BBQ.

Ik woon aan het park v....



Kaart

Eigenschappen
Naam Klipperstraat
Amsterdam
Type Appartement
Aanbieder Huurwoningen-Nl
Provincie Noord-Holland
Oppervlakte 78
Aantal kamers 4
Postcode 1034XM